Premium kolekcija

EcoHome L

EcoHome L je mobilna kuća površine 31 m² sa prostranom terasom i funkcionalnim rasporedom. Idealna je za ugodan boravak i opuštanje u savremenom prostoru. Brza realizacija zahvaljujući modularnoj gradnji.

Cijena od

€ 59.920,00

Isporuka

od 45 dana

Stambena površina

32.18 m²

Površina terase

18.35 m²

Opis modela kuće

Dizajnirano za moderan život, udobnost i vizuelnu eleganciju

EcoHome L je mobilna kuća površine 31 m² sa prostranom terasom i funkcionalnim rasporedom. Idealna je za ugodan boravak i opuštanje u savremenom prostoru. Ova modularna gradnja omogućava brzu realizaciju.


Savremena mobilna kuća koja kombinuje moderan dizajn, fleksibilnost i udobnost stanovanja.

Fleksibilnost i mobilnost

  • Modularna i individualna gradnja
  • Moguće proširenje i premještanje
  • Brzo vrijeme proizvodnje i montaže

Isplativost

  • Odličan odnos cijene i kvalitete
  • Niski operativni troškovi
  • Dugoročno zadržavanje vrijednosti

Kompletna usluga

  • Individualne konsultacije i planiranje
  • Profesionalna instalacija
  • Sveobuhvatna podrška projektu
  • Pouzdana partnerska mreža

Održivost

  • Ekološki prihvatljivi materijali
  • Energetski efikasna gradnja
  • Manji uticaj na okolinu

Sigurnost i bezbjednost

  • Vatrootporni materijali za povećanu sigurnost
  • Sigurne i pouzdane elektro instalacije
  • Konstrukcija projektovana za dugoročnu sigurnost

Dizajn spreman za budućnost

  • Koncept održive gradnje
  • Prilagodljiv novim tehnologijama
  • Uvećana vrijednost kroz ekološku gradnju

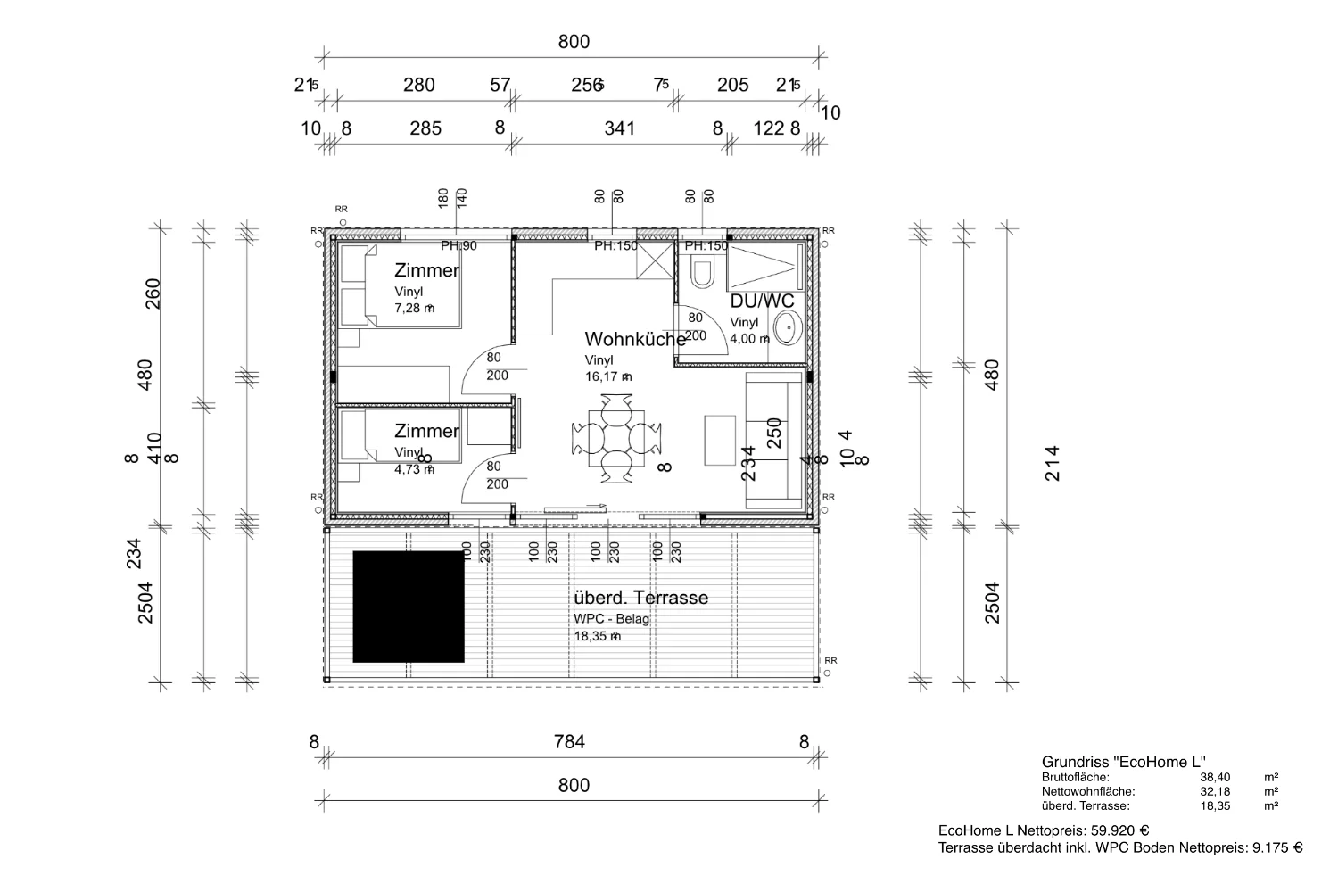
Plan kuće

Funkcionalan raspored prostora

Tlocrt kuće pruža jasan pregled rasporeda prostorija i funkcionalne organizacije prostora. Svaki model pažljivo je projektovan kako bi maksimalno iskoristio dostupnu površinu i omogućio udoban svakodnevni život.

Dužina

8.00 m

Širina

7.34 m

Stambena površina

32.18 m²

Površina terase

18.35 m²

Konstrukcija, materijali i završna obrada

Konstrukcija, materijali i završna obrada

Konstrukcija

  • Čelična konstrukcija
  • Otpornost na opterećenje snijegom do 400 kg/m²
  • Profilisane čelične armature i konstrukcijski nosači
  • Podesive nožice, podignute 15 cm iznad tla

Izolacija

  • Aluminijski sendvič paneli debljine 100 mm
  • Izolacija od kamene vune debljine 100-120 mm
  • Sistem parne brane
  • Visoke termičke performanse za sva godišnja doba

Vanjski elementi

  • PVC prozori sa trostrukim staklom
  • Električne roletne na svim prozorima
  • Sigurnosna ulazna vrata
  • Opciona terasa sa čeličnom podkonstrukcijom i WPC podom

Unutrašnja završna obrada

  • Završna obrada zidova i stropova od gipsanih ploča Knauf
  • Bijela disperzivna boja
  • OSB podloga debljine 12 mm
  • Vinilni podovi debljine 4 mm i furnirana drvena unutrašnja vrata

Instalacije

  • Električne instalacije u nezapaljivim zaštitnim cijevima
  • LED stropna rasvjeta uključena
  • Priprema za internet, TV i klima uređaj
  • Električni, vodovodni i odvodni sistemi u skladu sa standardima EU

Kupatilo i grijanje

  • Geberit ugradbeni vodokotlić i viseći WC
  • Tuš kabina, umivaonik i LED ogledalo
  • Električni bojler od 80 L
  • Multisplit klima uređaj za grijanje i hlađenje

Technički detalji

Detaljne tehničke specifikacije

Dimenzije 8.00 x 7.34 m
Stambena površina 32.18 m²
Površina terase 18.35 m²
Kupatila 1
Spavaće sobe 2
Kreveta 3
Maksimalni kapacitet 1 osoba
Dostupnost Raspoloživo

Pitanja i odgovori

Pitanja prije kupovine

Da, raspored i unutrašnja završna obrada mogu se prilagoditi vašim potrebama, uključujući materijale, boje i dodatne opcije.

Osnovna cijena uključuje kompletnu konstrukciju objekta, standardnu unutrašnju obradu i osnovne instalacije. Dodatne opcije su dostupne na zahtjev.

Da, nudimo isporuku i montažu u zavisnosti od vaše lokacije i uslova na terenu.

Proizvodnja obično traje nekoliko sedmica, u zavisnosti od modela i nivoa prilagodbe, nakon čega slijedi dogovorena isporuka.

Kontakt

Pošaljite upit za ovaj model

Zainteresovani za ovaj model? Pošaljite nam upit bez obaveze ukoliko imate dodatne zahtjeve ili želite zakazati konsultacije. Naš tim će vam rado pomoći i pronaći najbolje rješenje prilagođeno vašim potrebama.

Price from

€ 59.920,00

Send Inquiry

Obavijest o Kolačićima

Na našoj web stranici koristimo kolačiće da bismo unaprijedili vaše korisničko iskustvo. Prihvatanjem kolačića nam dajete svoju saglasnost za pohranjivanje istih. Saznajte više...